


Оформление документации по российским нормативным документам. Строгое соответствие требованиям СП 60.13330.2020, гидравлический и тепловой расчет с подбором арматуры, отопительных приборов, диаметра труб

Базы моделей оборудования включают трубопроводы, запорную арматуру, отопительные приборы, спецоборудование. Все базы открыты для редактирования и пополнения

Функционал программы позволяет автоматически получить корректную 3D-модель по 2D-чертежам, не прибегая к дополнительной ручной доработке модели

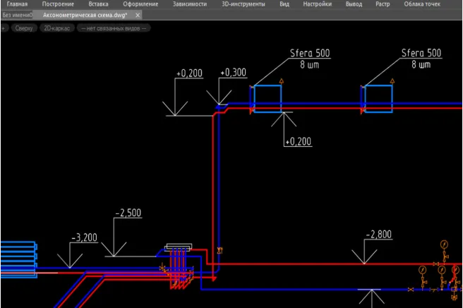
Автоматически формируется широкий спектр проектных документов: планы расположения оборудования и прокладки трубопроводов, аксонометрические схемы, гидравлические и тепловые отчеты, спецификация и т.д.

Соответствие требованиям СП 60.13330.2020. При выполнении расчета программа просчитывает трехмерную модель системы, вычисляет скорости движения, потери давления в трубах и на местных сопротивлениях. По результатам этих расчетов осуществляется подбор арматуры, приборов, диаметра труб и формируется отчет по каждой системе

Соответствие требованиям СП 60.13330.2020. При выполнении расчета программа анализирует параметры каждого участка сети. На участках производится расчет тепловой нагрузки, расхода теплоносителя. По результатам расчета осуществляется подбор числа секций радиаторов и формируется тепловой отчет по каждой системе

Программа nanoCAD BIM Отопление автоматически формирует аксонометрическую схему, тогда как подавляющее большинство зарубежных решений создает изометрию, не предусмотренную ГОСТ. Все табличные формы отвечают требованиям ГОСТ 21.602-2016 и ГОСТ 21.110-2013, а основная надпись на чертежах – ГОСТ Р 21.101-2020




