ООО «Рубеж» – один из лидеров в области проектирования и установки систем безопасности в Республике Бурятия. Миссия компании – разрабатывать инженерные решения, которые защищают жизни, бизнес и инфраструктуру. Для таких задач особенно важно использовать стабильное и надежное ПО, которое адаптировано к современным реалиям, в том числе к российским условиям импортозамещения.
В 2023 году выбор был сделан в пользу nanoCAD BIM ОПС – благодаря сходству интерфейса с ранее применявшейся системой AutoCAD и наличию развитой технической поддержки. Инженер компании «Рубеж» Павел Балдаков рассказывает, чем продукт из линейки nanoCAD оказался удобнее зарубежных аналогов, почему переход не вызвал сложностей, как удалось быстро встроить новое решение в рабочие процессы и почему теперь хочется работать именно с ним.
Всё началось со знакомства с компанией «МедиаТехнологии» на международной выставке Securika Moscow в 2023 году. Нам требовалось ПО, схожее по функционалу с программой nanoCAD BIM ОПС, – и в итоге мы выбрали именно ее.
Изначально мы использовали AutoCAD, и нам было важно, чтобы переход оказался как можно более простым и безболезненным. В общем-то так и получилось: интерфейсы AutoCAD и Платформы nanoCAD максимально близки, функционал тоже – так что перейти не составило труда. Было приятно обнаружить, что некоторые функции намного удобнее в использовании.
«Для меня самый востребованный функционал – это «горячие» клавиши. В AutoCAD есть такая функция, но ее нужно настраивать, а в nanoCAD она уже настроена изначально. Также гораздо удобнее устроена работа с листами – благодаря наличию привязки к краю листа. Важным аргументом в пользу Платформы nanoCAD стала надежная техподдержка, к которой мы регулярно обращались в процессе обучения».

Не сказал бы. Уже был достаточный опыт работы с похожей платформой, что позволило пройти обучение самостоятельно, по видеоурокам. Возникающие вопросы оперативно решались при помощи техподдержки. Какой-то предварительной настройки или специальной интеграции с другими системами не потребовалось, после приобретения лицензий сразу начали работу с текущими проектами. Изучали функционал в полевых условиях, на реальном эксплуатируемом объекте. Не было необходимости и в тестовом периоде.
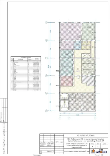
Один из самых свежих примеров – стационар Прибайкальской центральной районной больницы, для которого мы разрабатывали системы противопожарной защиты, пожарной сигнализации, оповещения и управления эвакуацией. Проект полностью выполнен в nanoCAD BIM ОПС.



При проектировании мы использовали встроенные библиотеки оборудования, настроили трассировку линий, оформили схемы и чертежи, автоматически сформировали спецификации, смогли избежать ошибок при подключении. Значительно ускорила процесс работа с 3D-моделью и параметрическими объектами.
Как и все, мы стремимся к повышению производительности. Сейчас с уверенностью могу сказать, что возросли скорость и точность подсчетов, удобство проектирования. Все работы отдела теперь выполняются быстрее.
По десятибалльной шкале поставил бы твердую семерку – есть предложения по оптимизации и доработке. В целом считаю продукты nanoCAD удобными и понятными, они заметно упрощают работу над проектами. Уже сформировалась привычка, и уходить от этой системы не хочется. Когда ПО нравится, работа приносит удовольствие.


