ООО «АРТ» – компания, которая занимается комплексным проектированием жилых и общественных зданий, имеет лицензию на государственную тайну. В числе реализованных и проектируемых объектов есть государственные заказы. География строительства – Москва и Московская область, Сочи, Геленджик, Ялта, Высоцк.
Необходимо оптимизировать процесс проектирования разделов КЖ (конструкции железобетонные) и КР (конструктивные решения), перейдя от использования AutoCAD к более современным и эффективным инструментам.
Основные проблемы, которые требовалось решить:
- Устранение ошибок: часто возникали ошибки из-за необходимости вручную обновлять изменения в разных частях проекта. Требовалось внедрить систему, которая минимизирует такие ошибки и обеспечивает автоматическое обновление всех связанных элементов при изменении одного из них.
- Автоматизация подсчета спецификаций: спецификации рассчитывались вручную, что затрудняло быструю проверку их корректности. Чтобы сократить время на обработку спецификаций и повысить их точность, нужно было поставить модуль для их автоматического подсчета и проверки.
- Улучшение процесса армирования: использование стандартных инструментов AutoCAD, таких как полилинии и динамические блоки, увеличивало время на создание армирования и ограничивало возможности для принятия конструктивных решений. Требовалось внедрить специализированные инструменты для армирования, которые позволяют ускорить процесс и повысить качество проектных решений.
- Повышение эффективности работы: оптимизация рабочих процессов должна сократить время на выполнение рутинных задач и предоставить больше времени для стратегических и важных конструктивных решений.
«БилдСофт» – фокус-партнер по направлению «Конструкции»
- Одним из главных преимуществ Платформы nanoCAD является ее регулярное обновление, что гарантирует использование современных функций и возможностей для проектирования. Это особенно важно в нашей сфере деятельности, где требуются высокая точность и актуальность данных.
- Кроме того, наличие качественной технической поддержки стало для нас решающим фактором. В любой момент при возникновении вопросов или проблем мы всегда можем рассчитывать на оперативную помощь и консультацию. Это значительно упрощает процесс работы и минимизирует возможные простои.
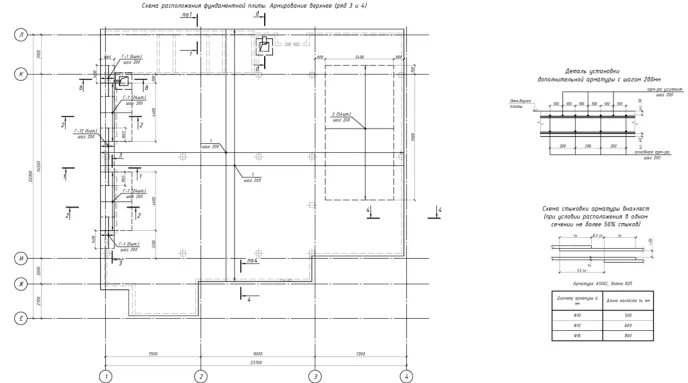
- Точный подсчет спецификаций на основе данных чертежа.
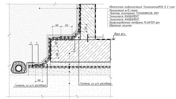
- Оформление чертежей КЖ в соответствии с СПДС (системой проектной документации для строительства).
Благодаря использованию nanoCAD Конструкции PS компания смогла повысить качество проектной документации. Программа имеет специализированные инструменты для размещения схематичной и детальной арматуры, что уменьшает вероятность ошибок, связанных с ручным вводом данных. Также nanoCAD Конструкции PS поддерживает создание отчетов, что позволяет быстро и точно получать спецификации. Эти результаты показывают, что использование nanoCAD Конструкции PS не только повышает точность, но и значительно снижает вероятность ошибок, автоматизируя множество процессов, включая подсчет спецификаций.
«Безусловно, в нашей компании отдают предпочтение отечественным программным продуктам, которые не только стабильно обновляются, но и обеспечивают надежную техническую поддержку. В этом контексте программа nanoCAD Конструкции PS оказалась идеальным решением для нашей работы и успешно закрыла все наши задачи».




