Подведены итоги конкурса студенческих проектов «САПР-Перспектива – 2023». Конкурс, который ежегодно проводит компания «Нанософт разработка», завершился 30 июня.
Участники представляли свои проекты в категориях по двум направлениям: «Машиностроение и промышленное производство» и «Архитектура/строительство/объекты строительной инфраструктуры».
Эксперты компании, входящие в жюри, отметили высокое качество и оригинальность выполненных проектов. Всего на конкурс было представлено 136 работ из 36 российских университетов. Наибольшее количество проектов поступило от студентов Казанского государственного архитектурно-строительного университета, Санкт-Петербургского государственного архитектурно-строительного университета и Уральского государственного горного университета.
В номинации «Гран-при конкурса» победил Владислав Чиннов, студент Московского политехнического университета, с проектом «Локомотив паровой». Модель локомотива выполнена с высокой детализацией, проработан каждый элемент, включая самые мелкие. При создании проекта автор использовал 3D-инструменты Платформы nanoCAD.
Конкурсная работа Владислава Чиннова: модель парового локомотива
«Проект полностью выполнен в Платформе nanoCAD. Работая над моделью, автор профессионально применил параметрические инструменты САПР и 3D-зависимости, внешние ссылки и многокомпонентную сборку. После некоторой доработки модель можно использовать как демонстрационный проект», – поделился экспертным мнением продакт-менеджер по направлению «Машиностроительное проектирование и 3D-моделирование» Алексей Гепта.
Победители в номинации «Лучший проект в категориях»:
- в категории «3D-модель изделия» – Роман Согрин из Белгородского государственного технологического университета им. В.Г. Шухова, с проектом «Зажим для закрепления труб при нарезании на них резьб», выполненным в модуле «Механика» Платформы nanoCAD;
Конкурсная работа Романа Согрина: зажим для закрепления труб при нарезании на них резьб
- в категории «2D-чертеж изделия» – Александр Данилов из Санкт-Петербургского государственного университета промышленных технологий и дизайна, с проектом «Кронштейн», выполненным в модуле «Механика» Платформы nanoCAD;
Фрагмент конкурсной работы Александра Данилова: чертеж кронштейна
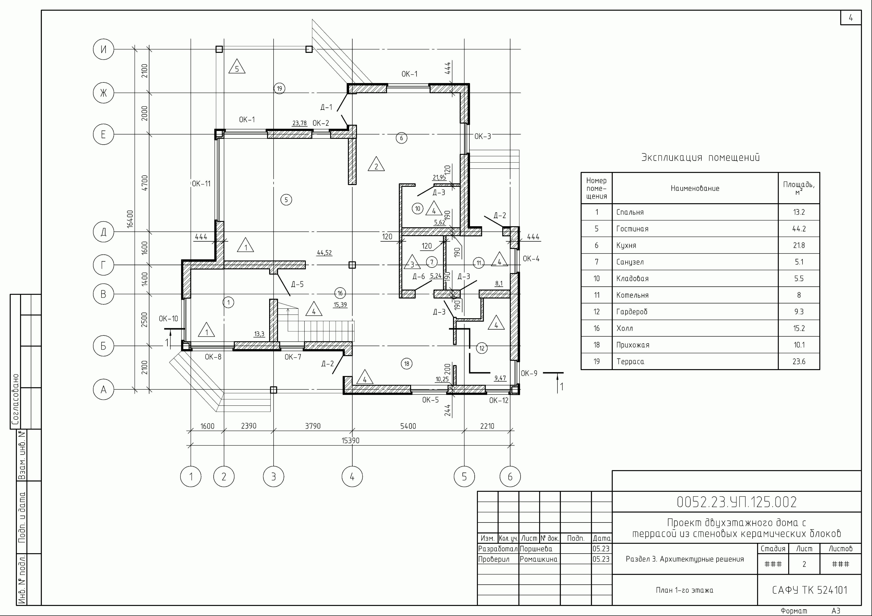
- в категории «Архитектура жилых зданий» – Виктория Рыбникова из Северного (Арктического) федерального университета им. М.В. Ломоносова (филиал в г. Северодвинске), с проектом «Двухэтажный кирпичный дом с террасой в г. Ярославль», выполненным в модуле «СПДС» Платформы nanoCAD;
Фрагмент конкурсной работы Виктории Рыбниковой «Двухэтажный кирпичный дом с террасой в г. Ярославль»
- в категории «Архитектура общественных и промышленных зданий и сооружений»– Софья Сиунова из Южно-Уральского государственного университета (национального исследовательского университета), с проектом «Капитальный ремонт здания МАУК ЦК “Молодежный” по адресу г. Екатеринбург, ул. Владимира Высоцкого, д. 22», выполненным в модуле «СПДС» Платформы nanoCAD;
Фрагмент конкурсной работы Софьи Сиуновой «Проект капитального ремонта здания МАУК ЦК “Молодежный”»
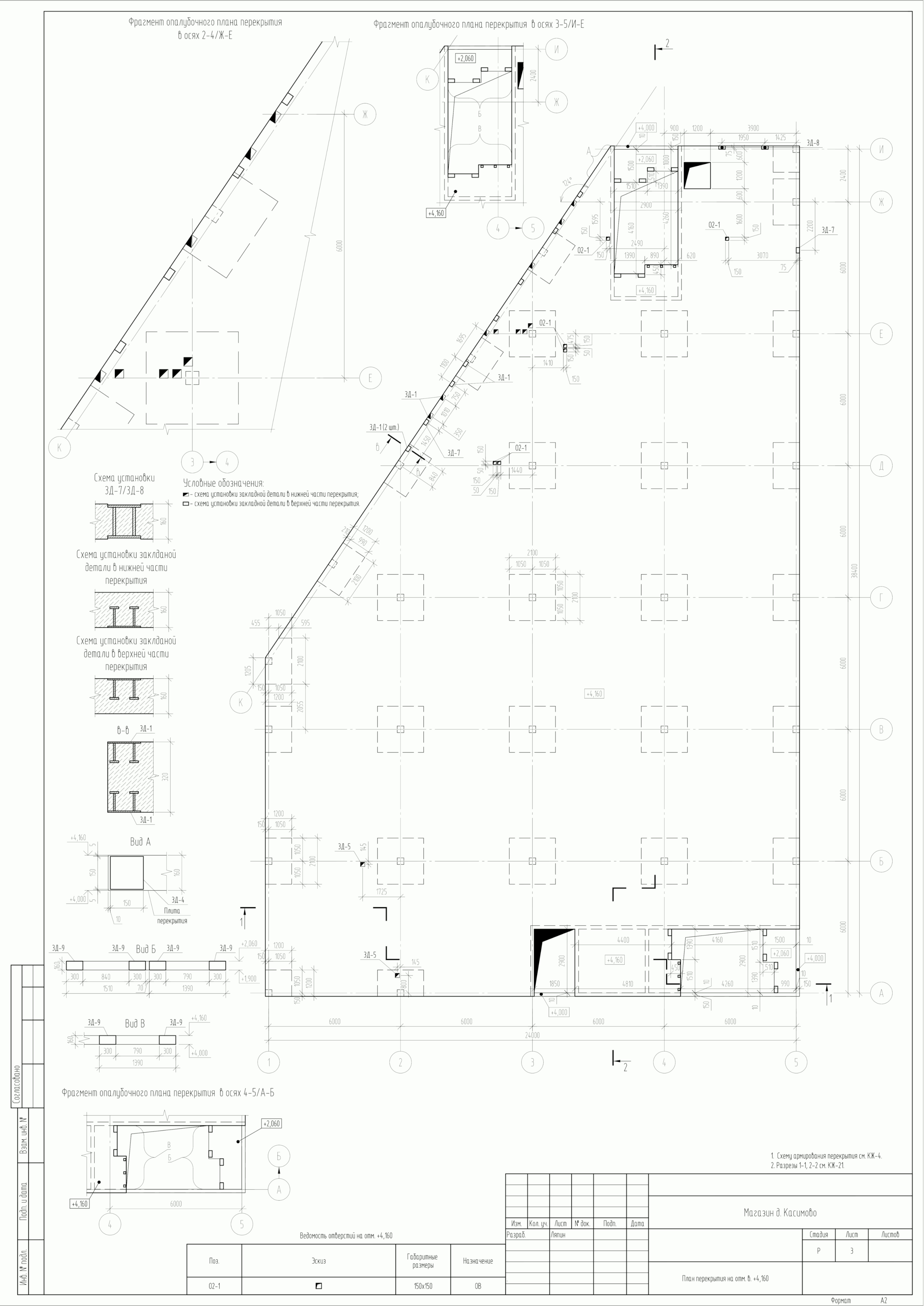
- в категории «Железобетонные и металлические конструкции» – Дмитрий Ляпин из Московского физико-технического института, с проектом «Магазин в д. Касимово», выполненным в модуле «СПДС» Платформы nanoCAD. Обладатель Гран-при конкурса «САПР-Перспектива – 2022», Дмитрий снова продемонстрировал высокий уровень инженерной подготовки;
Фрагмент конкурсной работы Дмитрия Ляпина «Проект магазина в д. Касимово»
- в категории «Организация строительства» – Маргарита Рябуха из Донбасской национальной академии строительства и архитектуры, с проектом «Технология монтажа строительных конструкций одноэтажных промышленных зданий», выполненным в модуле «СПДС» Платформы nanoCAD и программе nanoCAD Cтройплощадка;
Фрагмент конкурсной работы Маргариты Рябухи: схемы монтажа строительных конструкций одноэтажного промышленного здания
- в категории «Подготовка топографических планов» – Сергей Крупин из Российского государственного геологоразведочного университета им. Серго Орджоникидзе (Старооскольский филиал), с проектом «Топографический план земельного участка с перспективой развития крестьянского (фермерского) хозяйства», выполненным в Платформе nanoCAD и программном комплексе nanoCAD GeoniCS.
Фрагмент конкурсной работы Сергея Крупина: топографический план земельного участка
Победителем в номинации «Выбор интернет-сообщества» стала Карина Цветкова, студентка Северного (Арктического) федерального университета им. М.В. Ломоносова (филиал в г. Северодвинске). Ее проект «Двухэтажный кирпичный дом с террасой в г. Вологда», выполненный в модуле «СПДС» Платформы nanoCAD, признан лучшим по итогам онлайн-голосования в социальной сети «ВКонтакте».
Фрагмент конкурсной работы Карины Цветковой «Проект двухэтажного кирпичного дома с террасой в г. Вологда»
Авторы представленных проектов продемонстрировали высокий уровень владения технологиями проектирования и программными продуктами линейки nanoCAD, а также отличное знание предметной области.
Решением конкурсной комиссии четыре проекта отмечены специальными призами:
- специальный приз «Model Studio CS на базе Платформы nanoCAD» получил Святослав Полежаев, студент Пермского национального исследовательского политехнического университета, за проект «Цементный завод мощностью 1000 тонн в сутки», выполненный с применением Платформы nanoCAD и системы Model Studio CS;
Фрагмент конкурсной работы Святослава Полежаева «Цементный завод мощностью 1000 тонн в сутки»
- специальный приз «Групповая сборка» получила команда студентов из Санкт-Петербургского государственного архитектурно-строительного университета за проект «Коттедж “Успенское”». Модель здания, авторами которой стали Павел Данев, Софья Дорош, Екатерина Дьячкова, Данил Латыпов, Ангелина Макренко, Алексей Машигин, Елизавета Ткаченко, Арина Шаравина и Роман Эйн, впечатлила конкурсную комиссию сложностью 3D-элементов в архитектурном решении;
Коллективная конкурсная работа студентов СПбГАСУ: коттедж «Успенское»
- специальный приз «Разработка программного модуля» получил Павел Симоненко, студент Московского политехнического университета, за проект «Модуль проектирования 3D-модели трубопровода». Победитель конкурса «САПР-Перспектива – 2022» в категории «3D-модель изделия», Павел и в этом году смог удивить экспертов сложностью своей работы, разработав проект программы для расширения функционала Платформы nanoCAD;
Фрагмент конкурсной работы Павла Симоненко «Модуль проектирования 3D-модели трубопровода»
- специальным призом «Разработка программного модуля» отмечен Алибег Карабеков, студент Московского политехнического университета, за проект «“Ниппельные соединения” для nanoCAD с использованием API MultiCAD». Автор создал для Платформы nanoCAD модуль, с помощью которого можно строить 3D-модели ниппелей и ниппельных соединений по определенным ГОСТам.
Фрагмент конкурсной работы Алибега Карабекова «“Ниппельные соединения” для nanoCAD с использованием API MultiCAD»
Победители во всех номинациях награждаются денежными призами.
Все авторы конкурсных работ получат сертификаты участников, фирменные футболки, а также бесплатный доступ на три месяца к Базовому курсу по Платформе nanoCAD и Основам 3D-моделирования от компании «Нанософт разработка».
Руководству учебных заведений, студенты которых представили конкурсные проекты, и преподавателям-кураторам этих проектов компания «Нанософт разработка» направит официальные благодарственные письма.
Подробные итоги опубликованы на официальном сайте конкурса «САПР-Перспектива – 2023».


