



Удобная работа благодаря широким возможностям настроек. Инструменты оформления конструкторской и технологической документации можно адаптировать в соответствии с требованиями внутреннего нормоконтроля предприятия, учитывая правила ЕСКД и ЕСТД

Обширный функционал для автоматического создания спецификаций по ГОСТу: простой, встраиваемой, электромонтажной, плазовой, групповых типов А и Б. Широкий спектр настроек позволяет учитывать особенности подготовки спецификаций на различных предприятиях, а также создавать пользовательские спецификации

Большой выбор параметрических стандартных элементов (ГОСТ, ОСТ, DIN и ISO). В сочетании с возможностью создания пользовательских типовых элементов это позволяет значительно сократить сроки разработки проекта, максимально уменьшить объем рутинной работы и полностью сконцентрироваться на инженерном творчестве

Уникальная технология проектирования цилиндрических и конических зубчатых зацеплений, а также их оптимизация по результатам расчета непосредственно на чертеже. Предоставление полного отчета с формулами и ссылками на страницы ГОСТ

Инструменты проектирования болтовых и заклепочных соединений. Пользователи могут создавать и настраивать соединения с использованием болтов и заклепок, учитывая различные параметры, такие как размеры, материалы и прочность соединения

Функционал, позволяющий создавать разделки кромок и сварных соединений по ГОСТ 5264, наносить обозначения сварных швов, выполнять расстановку сварных точек

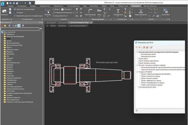
- Расчет цилиндрических и конических зубчатых передач;
- расчет пружин растяжения и сжатия;
- расчет конструкций сосудов и аппаратов;
- статистический расчет вала, а также расчет балки.

