nanoCAD BIM Строительство – российский программный продукт, созданный для информационного моделирования зданий и сооружений. Позволяет выполнять моделирование, создавать и настраивать информационную составляющую объектов (параметры), получать документацию по информационной модели и осуществлять интеграцию со смежными разделами.
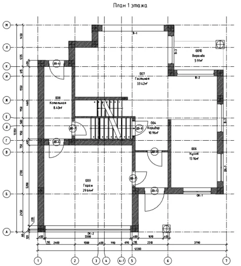
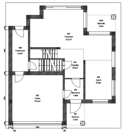
В этой статье мы рассмотрим основные инструменты работы с параметрами для настройки оформления видов. Настроим автоматизацию оформления плана: маркировку окон, дверей и простановку размеров (рис. 1).

В nanoCAD BIM Строительство каждый объект обладает свойствами, состоящими из информационных параметров (рис. 2).

Параметры имеют наименования и значения. Наименования параметров могут отображаться в двух видах: Имя параметра (на английском языке), которое используется для фильтрации, специфицирования, параметризации объекта, и Заголовок (на русском языке). Переключаются наименования при помощи кнопки Показывать заголовки параметров (рис. 3).

Возможные значения параметров представлены на рис. 4.

По каждому типу объекта можно настроить свой набор параметров. Также сами объекты предоставляют возможность добавлять параметры и создавать собственные (рис. 5).

При добавлении параметра из списка открывается список параметров текущей базы данных. Параметры распределены по категориям, вы можете выбрать их в нужной категории или найти через строку поиска (рис. 6).

При создании параметра понадобится заполнить данные, приведенные на рис. 7.

После моделирования и заполнения параметров переходим к получению видов и формированию чертежей.
Для автоматизации получения и хранения видов используется Диспетчер проекта. Выбираем в Диспетчере нужный уровень (Первый этаж) ⇒ щелкаем на этом уровне ПКМ (правой кнопкой мыши) ⇒ Поэтажный 2D план (рис. 8).

Устанавливаем визуальный стиль Пользовательский ⇒ Черно-белый (рис. 9).

Далее выполним подготовку модели для получения и оформления плана этажа:
- Разместим оси модели на слой 2D.Сетки_осей_скрытый (предварительно создав его в Диспетчере слоев) и заморозим его для сохранения вида.
- Назначим режим отображения модели 2D план: выберем _pe_set_style в командной строке или соответствующую команду в строке состояния ⇒ 2D план.
Результат подготовки плана показан на рис. 10.

В Диспетчере проекта щелкнем ПКМ на разделе Планы поэтажные ⇒ Добавить вид (рис. 11).

Убедимся, что конфигурация слоев была сохранена в текущем состоянии (см. рис. 11).
Затем выложим вид на лист: щелчок ПКМ на сохраненном плане в Диспетчере проекта ⇒ Выложить вид на лист ⇒ выбираем лист ⇒ размещаем вид (рис. 12). И переходим к настройке профилей оформления.

Мастер простановки размеров позволяет настроить профили оформления видов по определенным правилам с применением фильтрации для объектов. Рассмотрим создание основных профилей оформления (Размеры и Выноски). Профиль Координационные оси здания возьмем существующий, из Мастера автоматического создания размеров (рис. 13).

Перейдем к созданию новых профилей.
Для нового профиля простановки размеров необходимо определить параметры и значения, через которые будет выполняться фильтрация объектов. Могут применяться как параметры из базы данных, так и созданные силами пользователя.
В нашем случае используем параметры Наименование [PART_NAME], Номер этажа [AEC_FLOOR] и Позиция по спецификации [BOM_GROUP] (для витражей) – (рис. 14).

Для окон и дверей выведем в маркер элемента значение параметра Марка [BOM_MARK]. Для витражей в маркер отправится значение параметра Позиция по спецификации [BOM_NUMBER].
Переходим к созданию профилей.
Для создания нового профиля открываем Мастер простановки размеров и выбираем Новый профиль (рис. 15).

Первым создадим профиль маркировки дверей.
При создании нового профиля необходимо указать, для какого типа данных этот профиль будет применен. Чтобы это определить, нажимаем кнопку Добавить размер ⇒ Выноски ⇒ тут же можем установить Размерный стиль (или оставить его незаполненным по умолчанию) – (рис. 16).

Далее в разделе Доступные типы объектов устанавливаем первичный фильтр объектов (в нашем случае Дверь) ⇒ Тип объекта Проемы (рис. 17). Чтобы уточнить тип объекта, необходимо выделить его в модели – тип объекта отобразится в первой строке свойств (рис. 18). Если в модели используются элементы «Дверь» из более ранней версии ПО (nanoCAD BIM Конструкции), они представлены как Оборудование в фильтре.


Вызываем Мастер функций, где мы можем прописать логические формулы для условия отображения объектов, используя кнопку Добавить оператор.
Фильтрацию выполним через операторы «like» (Соответствие строки маске) и «=» (Равно) – (см. рис. 17).
Для добавления параметра в Мастер функций воспользуемся кнопкой Добавить параметр с последующим выбором нужных параметров в списке. Используем два параметра: Наименование [PART_NAME] и Номер этажа [AEC_FLOOR] (рис. 19).

Запишем условия при помощи операторов и параметров:
[PART_NAME] like "Двер%" and [AEC_FLOOR]=1,
что означает: если параметр Наименование начинается с букв Двер, элемент попадет в фильтр (окончание по данному оператору устанавливаем %, то есть дальше могут следовать любые буквы). Используем оператор and – «и», Номер этажа = 1.
Мы определили, что именно эти объекты будут попадать в фильтр для простановки маркера двери.
Далее заполняем параметры настройки маркера. При первом заполнении рекомендую выполнить эту операцию так, как показано на рис. 20-21.
Подробнее рассмотрим определение ключевых точек объекта (где наш маркер будет размещаться относительно объекта Дверь). Параметры простановки размеров «Выноски» ⇒ Положение ⇒ Ключевые точки объектов ⇒ Центр габаритов (рис. 20).

Для маркера двери необходимо установить рамку (рис. 21). Выбираем скругленную, прописываем ширину (с учетом того, что наша рамка будет круглой) и размещаем текст внутри рамки.
Для параметра Рисовать линию выноски указываем Нет (см. рис. 21).

Далее сохраняем профиль (рис. 22) и можем сразу применить его на видовой экран.

В рамках этой статьи предлагаю применить сразу все профили после создания.
По такому же алгоритму создадим профиль маркировки окон и витражей.
На сей раз заполним один профиль на два элемента. Возможно выполнение профиля сразу по всем необходимым маркировкам – это остается на ваше усмотрение.
Создадим профиль. В способе простановки размеров выберем Выноски, в комментариях пропишем Окна и Выноски – Витражи (рис. 23).

Параметры простановки размеров будем заполнять по очередности создания. Фильтр объектов выполним по тем же условиям, что и в профиле Двери.
Для параметра Рамка вокруг текста установим Нет. Заполнение параметров как на рис. 24.

Далее переходим к витражам.
Условие для фильтрации выполним по ранее добавленному и заполненному параметру Группа по спецификации для витражей (см. рис. 14) и Номеру этажа = 1. В маркер выведем параметр Позиция по спецификации (рис. 25). Заполнение параметров профиля выполним так, как показано на рис. 25, после чего сохраним профиль.

Для профиля простановки размеров создадим два способа простановки: Цепочка слева и Цепочка снизу (рис. 26).

В Доступных типах объектов выберем Проемы, Стена.
Настройку фильтра выполним по условию:
[PART_NAME] like "Двер%" or [PART_NAME] like "Окн%" or [PART_NAME] like "Стен%" and [AEC_FLOOR]=1,
что означает: если объект имеет Наименование, начинающееся с Двер, Окн, Стен, и Номер этажа = 1, ему будет проставлен размер.
Далее заполним параметры простановки размеров.
- Общий размер – Нет (он будет применен в профиле «Координационные оси здания»).
- Размерные линии выберем от точки вставки объекта.
- Ключевые точки объекта – Границы проекции габаритов.
- Фильтр ключевых точек – ближайшие точки.
- Допуск фильтра ключевых точек – 10 (рис. 27).

Размерную Цепочку слева заполним с теми же параметрами и условиями фильтрации – по рис. 27.
Протестируем созданный размерный профиль (рис. 28).

Если для Допуска фильтра ключевых точек ввести размер 80 мм (этот параметр влияет на удаленность объектов от рамки вида), то размеры переместятся в данном диапазоне ко всем стенам, проемам и перегородкам, но будут требовать коррекции (рис. 29).

Предлагаю оставить первый вариант Допуска ключевых точек, равный 10; недостающие размеры можно дооформить.
После тестирования профиля, если мы меняем значения, нам необходимо удалить примененный. Для этого вызываем команду Удалить автоматические размеры ⇒ выбираем видовой экран, к которому были применены профили оформления ⇒ ставим галочку около профиля, который нужно удалить ⇒ нажимаем ОК (рис. 30).

Профили настроены, можем применить их к видовому экрану: команда Мастер простановки размеров ⇒ отмечаем нужные профили ⇒ Готово ⇒ выбираем видовой экран (рис. 31).
Применяя профили, проверяем в строке состояния масштаб (m1:1).

В этой статье мы разобрали настройку фильтрации через параметры объекта, логические операторы и профили простановки размеров для автоматизации маркировки и размеров чертежей. Теперь вы можете настроить профили и сократить время оформления документации. Также их можно экспортировать и импортировать для последующего использования и обмена с коллегами.



