АО «Пигмент» – российский производитель химической продукции, известной на рынке под торговым знаком КРАТА®. Актуальный ассортимент в сочетании с индивидуальным подходом к каждому потребителю делает это тамбовское предприятие одним из ключевых игроков отечественного химпрома. В России и странах СНГ только АО «Пигмент» производит органические пигменты, оптические отбеливатели, сульфаминовую кислоту.
- Импортозамещение инженерного ПО в связи с прекращением поддержки лицензий AutoCAD, SOLIDWORKS и других зарубежных продуктов.
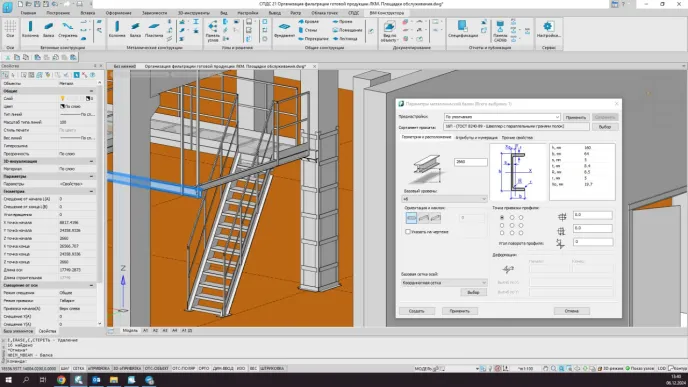
- Глубокая автоматизация проектирования технологического оборудования, подготовки производства, разработки проектной документации для создания новых и модернизации существующих схем производства.
- Необходимость перехода в сжатые сроки с 2D- на 3D-инструменты проектирования.
Softline – фокус-партнер по направлению «Конструкции».
- Привычный интерфейс – минимум времени на адаптацию к работе в новом продукте как опытных сотрудников, так и молодых специалистов, недавних выпускников вузов.
- Наличие встроенных российских стандартов и библиотек – всех необходимых предприятию. Это позволило использовать внедряемые продукты непосредственно «из коробки».
- Доступная стоимость в сравнении с альтернативными вариантами, широкие возможности лицензирования.
- Возможность прямого общения с разработчиками, позволяющая влиять на развитие продуктов.
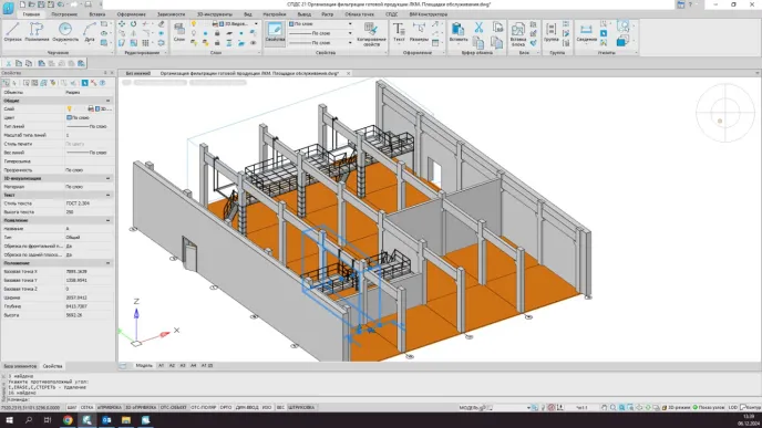
Сократились сроки проектирования и время, необходимое для устранения коллизий в строительных конструкциях. Наглядность 3D-представления помогает выявлять неточности, которые трудно заметить на плоских чертежах.
Как следствие, повысилась производительность труда на всех этапах проекта, включая разработку силами строительной группы и закупку материалов для будущего изготовления конструкций монтажной организацией. Возросла и точность подсчета количества материалов, что позволило оптимизировать бюджеты строительства.
«Мы успели оценить не только удобный интерфейс линейки nanoCAD и ее широкий функционал, охватывающий все наши ключевые потребности, но и низкий порог вхождения в новый продукт.
Для большинства сотрудников процесс перехода оказался безболезненным. В том числе этому способствовали доступность обучающих материалов от разработчика, развитое сообщество пользователей, а также обучение и консультационная поддержка от специалистов Softline в период адаптации.
Сегодня мы постоянно взаимодействуем с вендором, компанией “Нанософт”, участвуя в процессе совершенствования российского ПО».




Следующий шаг – это организация на базе продуктовой линейки nanoCAD полноценной инженерной среды, которая позволит применять шаблоны для автоматизированного поиска коллизий и в целом упростит работу проектировщиков.
Рассматриваются перспективы применения программного продукта nanoCAD Облака точек для обработки результатов лазерного сканирования объектов предприятия. Исследование этих данных позволит быстрее и точнее планировать добавление оборудования, расширение существующих и организацию новых производств.


