
Появился долгожданный программный продукт под названием nanoCAD BIM Строительство, который ориентирован на интеграцию архитектурной и конструктивной частей в едином BIM-решении.
Эксперты Академии BIM стали первопроходцами и выполнили фрагмент реального проекта на основе разработки российской девелоперской компании «Сити-XXI век». Оставаясь в рамках системы nanoCAD и используя Платформу, конфигурацию «nanoCAD BIM Архитектура», а также средства модуля «СПДС», наши специалисты создали BIM-модель жилого дома и комплект основных архитектурных чертежей на ее основе.
В качестве прототипа для пилотного проекта был выбран реальный проект жилого дома, выполненный несколько лет назад в ПО Autodesk Revit с экспортом оформленных чертежей в формате *.dwg.

Для пилотного проекта взят фрагмент из трех жилых секций со следующими параметрами:
- общая площадь: 6224 кв. м;
- строительный объем: 22 710 куб. м;
- этажность: 4-6 этажей;
- площадь застройки: 10 528 кв. м.
Работа начинается с создания и настройки сетки осей, к уровням которой привязываются все объекты модели.
По умолчанию в новом документе, создаваемом в среде программы, имеется сетка, требующая настройки по параметрам проекта. Сетки можно создавать и удалять. В документе может содержаться несколько сеток, совмещенных или смещенных относительно друг друга.
Настройка сеток производится в диалоговом окне Свойства координатной сетки.

Сетки могут быть прямоугольными и круговыми. Каждая из них настраивается по трем направлениям. Для круговой сетки это расстояния между дуговыми осями в плане, между высотными уровнями, а также углы по радиальным направлениям. Для прямоугольной сетки настраиваются расстояния между ее элементами по трем направлениям вдоль осей X, Y и Z.
Для пилотного проекта использовалась прямоугольная сетка.
Оси каждого направления сетки настраиваются в отдельных диалоговых окнах.
Настройке подлежат расстояния между соседними осями или дистанция каждой оси от нулевой позиции, оба параметра связаны между собой и автоматически обновляются.
Каждая ось и уровень должны иметь уникальное имя. По умолчанию предлагаются целые числа, начиная от «1», и кириллический алфавит, начиная от «А». Видимость осей и уровней управляется флажками.
Метки осей могут выводиться с двух сторон, с выбранной стороны либо отключаться.
Уровням могут назначаться цвета отображения осей.
Кнопки в окне справа отвечают за выбор, добавление/удаление, нумерацию и сортировку осей и уровней.
Расстояние от крайней оси до меток не регулируется. Для нанесения осевых размеров удлиненные метки были созданы стандартными средствами Платформы nanoCAD; возможно использование инструментов модуля «СПДС», при этом метки сетки по этим сторонам должны быть отключены.

На изолированный уровень сетки помещена подложка .dwg для привязки в процессе построений.

Подложка может не выравниваться по рабочему уровню. Находясь по умолчанию на нулевом уровне, она обеспечивает корректную привязку для элементов модели, создаваемых и редактируемых на рабочем уровне.
Настройка стен выполняется в немодальном диалоговом окне Создание стены и включает назначение следующих параметров:
- материал;
- толщина основания;
- форма сечения (наклонная или трапециевидная);
- угол или углы наклона;
- привязка и отступ от линии построения;
- зависимость от сетки осей и уровней;
- базовый уровень;
- смещение от базового уровня;
- зависимость верха стены от уровня;
- смещение от верхнего уровня;
- высота стены.
Материал выбирается из раскрывающегося списка или настраивается в модальном диалоговом окне Материалы, общем для всех элементов здания и предлагающем настройку параметров:
- код;
- имя;
- описание;
- приоритет пересечения;
- цвета и образцы штриховок для стилей отображения 2D и 3D.

По умолчанию предлагается открытая для пополнения база из 207 настроенных материалов. Материалы можно создавать, редактировать, удалять, сохранять с новыми именами. Есть возможность настраивать набор материалов, отображаемый в раскрывающемся списке. Изменения параметров могут быть применены к материалу текущего объекта или обновляться глобально для всех объектов документа.
Для создания сегмента стены требуется указать позиции его концов. Одной командой можно создать цепочку сегментов стены одного типа. Эти сегменты автоматически объединяются при совмещении концов.
Работа с многослойными стенами в текущем релизе программы не предусмотрена, однако ожидается в следующих версиях. Для создания многослойной конструкции можно создавать смежные параллельные стены.
В конкретном пилотном проекте это было оправданно, поскольку в составе наружных стен главная стена создавалась по высоте между перекрытиями, а наружный слой утепления фасада выполнялся инструментом Стена на полную высоту рабочего уровня.
Участки стен можно размножать копированием.
Работа со стенами может вестись в режимах 3D-модели или 2D-плана. В режиме модели участки стен имеют объемное представление в соответствии с настройками материала и выбранным стилем отображения, который назначен видовому экрану. В режиме плана стены представлены плоскими с учетом нормативных требований к отображению элементов чертежей. Плоский план со стенами можно просматривать в произвольной проекции, при этом он располагается на рабочем уровне, а на уровне нулевой отметки прерывистыми линиями отображается проекция контуров стен без штриховок.

При выборе существующей стены или нескольких стен для работы с ними доступно немодальное диалоговое окно Параметры стен, полностью идентичное рассмотренному выше диалоговому окну Стены.
В функциональной панели Свойства рабочего окна программы доступны для изменения высота, толщина, сторона привязки и смещение от оси построения, а также параметр, отвечающий за включение элемента в спецификацию. Площадь и объем выбранной стены отображаются для сведения, без возможности редактирования. Строка Параметры обеспечивает доступ к предназначенному для опытных пользователей окну расширенных настроек параметров стены.
Свойства проемов и элементов их заполнения настраиваются в немодальном диалоговом окне Создание проема. В окне доступна настройка следующих параметров:
- тип;
- марка;
- геометрические параметры проема и элементов заполнения;
- зависимость от сетки осей и уровней;
- базовый уровень;
- отметка низа проема;
- точка вставки (справа/слева/центр);
- положение при вставке в наклонную стену.
Для выбора доступны три категории проемов:
- двери;
- окна;
- пустые проемы.

Для выбранной категории доступны несколько типов проемов с наборами настраиваемых вариантов исполнения. Варианты исполнения для выбранного типа проема собраны в графическом меню как схемы с подписями.
В составе дверей кроме них самих представлены балконные блоки как комбинации окон и двери, а также модульные остекленные перегородки. Варианты окон: прямоугольные, круглые и арочные. В соответствующем разделе возможен выбор из прямоугольных, круглых и арочных пустых проемов, здесь же находятся двери лифтовых шахт. Все эти комбинации имеют собственные наборы настроек для внешних габаритов и членений.
Доступна настройка положения элемента заполнения в проеме по глубине.
Вставка проема выполняется указанием позиции для точки вставки, выбранной в настройках создаваемого сегмента. Сегмент стены подсвечивается при наведении на него курсора.
Проем связывается с участком стены. При скрытии проема с заполнением отверстие в стене сохраняется. При скрытии стены заполнение проема не скрывается.
Отображение заполнения проема возможно в вариантах 2D и 3D, в зависимости от стиля, назначенного видовому экрану, – аналогично тому, как это описано выше, в разделе «Стены».

При создании комбинации параллельных стен из разных материалов проем вставляется в одну из них, не прорезая вторую. Для создания проема во второй стене можно использовать пустой проем, либо твердотельный объект с динамическим булевым вычитанием, либо аналогичный проем с последующим скрытием.

Проемы не могут копироваться между сегментами стен, но копируются в составе сегмента стены с проемом.

При выборе существующего проема или нескольких проемов доступно немодальное диалоговое окно Параметры проема, полностью идентичное рассмотренному выше диалоговому окну Создание проема.

Выполненные настройки могут применяться ко вновь создаваемому (или редактируемому) объекту или переопределять существующий тип с распространением на все вхождения типа в документе.
В функциональной панели Свойства рабочего окна программы доступны для изменения при выборе проема его ширина, высота, марка, доступность для включения в спецификацию, положение по горизонтали и вертикали, привязка к стороне стены и сторона открывания для дверей. Строка Параметры обеспечивает доступ к предназначенному для опытных пользователей окну расширенных настроек параметров проема.
Настройка параметров создаваемого перекрытия выполняется в немодальном диалоговом окне Создание перекрытия.

В окне доступна настройка следующих параметров:
- материал;
- толщина;
- поверхность привязки (верх/низ);
- смещение поверхности привязки от базового уровня;
- зависимость от сетки осей и уровней;
- базовый уровень;
- смещение от базового уровня.
Порядок работы с материалами аналогичен рассмотренному выше порядку работы со стенами.
Перекрытие создается вводом позиций вершин контура – аналогично тому, как это делается при создании полилинии; доступны дуговые сегменты и замыкание. При совмещении первой и последней точек ввода команда завершается созданием объекта.
Возможно создание перекрытия по объекту выбором замкнутой полилинии.
Изменение параметров существующего перекрытия выполняется в немодальном диалоговом окне Параметры перекрытия, идентичном диалоговому окну Создание перекрытия.
Возможно прямое редактирование контура выбранного перекрытия (аналогично прямому редактированию полилиний), а также создание в нем отверстий вводом позиций вершин контура отверстия – аналогично процедуре создания перекрытия.
Для модели этажа создавалось основное перекрытие по наружному контуру наружных стен со смещением относительно отметки уровня на толщину конструкции пола.

Для каждого помещения создавались отдельные перекрытия для полов с привязкой верха по рабочему уровню и с учетом проектной толщины.

Для промежуточных площадок в лестничных клетках перекрытия создавались с учетом их проектного смещения от рабочего уровня.

В режимах 2D и 3D при использовании красочных визуальных стилей перекрытия имеют тонированное отображение в соответствии с назначенным им материалом, поэтому для получения корректных чертежей планов требуется выбор визуального стиля без тонирования либо отключение видимости перекрытий по слоям или с помощью инструмента Изоляция.
Лестницы и лестничные площадки создаются выбором образцов в списке, представленном на функциональной панели Библиотека объектов.

В библиотеку включены готовые лестницы, пандусы, площадки, ступени и ограждения по каталогам.

Возможно создание элементов лестниц прямым моделированием инструментами модуля «3D» с преобразованием объектов в параметрические и присвоением им необходимых параметров.
Лестница размещается в модели указанием позиций пары точек для углов марша.
В режиме 2D-плана марш отображается как плоский чертеж со смещением по вертикали от рабочего уровня.
Выбранный марш имеет метки для динамического растягивания.
На функциональной панели Свойства для выбранного марша можно изменять признак включения в спецификацию, назначать марку элемента для спецификации, а также получать доступ к диалоговому окну Параметры объекта с дополнительными свойствами.
Для простановки размеров и выносок в пилотном проекте использовались объекты оформления, предлагаемые Платформой nanoCAD. Размеры для кладочного плана создавались в пространстве модели.
Возможна также работа с размерами в пространстве листа по объектам, отображаемым на видовом экране; динамическая связь таких размеров с точками измерения на объектах модели сохраняется.
На листе видового экрана с сохраненным видом возможна автоматическая расстановка размеров, но при большом количестве размерных обозначений в насыщенном чертеже неизбежна работа по их корректному размещению с устранением взаимных наложений.

Размеры корректно отображаются в 3D-представлении модели этажа.

Параметры создаваемых помещений настраиваются в немодальном диалоговом окне Создание помещения:
- номер;
- имя;
- отображение маркера;
- код категории по ПБ;
- категория по назначению;
- цвет и прозрачность;
- зависимость от сетки осей и уровней;
- базовый уровень;
- смещение от базового уровня;
- зависимость верха от уровня;
- смещение или высота помещения;
- величина уменьшения измеренной площади числом или в %.

Помещения создаются вводом позиций вершин контура, поддерживается использование дуговых сегментов.
Помещения могут создаваться по объекту выбором замкнутой полилинии.
Возможно прямое редактирование контура выбранного помещения аналогично прямому редактированию полилиний, а также создание отверстий в плане вводом позиций вершин контура – аналогично тому, как это делается при работе с перекрытиями.
Изменение параметров выбранного существующего помещения выполняется в немодальном диалоговом окне Параметры помещения, идентичном диалоговому окну Создание помещения.
В составе объектов-помещений создаются марки с номером, наименованием и площадью. Отображением марок есть возможность управлять.
Через функциональную панель Свойства можно изменять для помещения номер, имя, категорию по пожарной опасности, категорию назначения, базовый уровень, видимость текстовой марки, стандартный для текстовых объектов набор параметров, точность отображения площади.

Помещения и их текстовые марки автоматически попадают на слои с соответствующими именами.
Для отображения марок стен и перегородок, а также элементов заполнения проемов использовались объекты-поля, ссылающиеся на нужный параметр связанных с ними объектов модели.

Для отображения марок перемычек, полов и отделки помещений и сохранения их параметров использованы блоки с наборами атрибутов, соответствующими столбцам итоговых таблиц. Часть атрибутов определялась как видимые (сами марки), другие, с параметрами, как скрытые. Для корректного отображения чертежа размеры на видовом экране с маркировочным планом скрывались по слою. Аналогично на кладочном плане по слоям скрывались марки помещений и элементов здания. Для типов полов и отделки блоки создавались отдельно по каждому типу и содержали атрибут с заранее записанным в него многострочным описанием. Атрибуты с геометрическими параметрами заполнялись полями, ссылающимися на соответствующие параметры объектов модели.

Для создания плоских кровель с внутренними водостоками на разных уровнях использованы объекты-перекрытия и объекты-кровли с отрицательными значениями уклонов скатов.
В слое пирога кровли, созданном объектом-перекрытием, уклоны создавались динамическим булевым вычитанием из него корректно размещенного объекта-кровли. После скрытия вычитаемого объекта уклоны в слое пирога сохраняются и корректно отображаются во всех проекциях и сечениях. При взаимном смещении объединенных булевым редактированием объектов их связь сохраняется и общая геометрия динамически обновляется.


После применения булева вычитания к объектам, формирующим кровлю, в слое пирога кровли, созданном объектом-перекрытием, отверстия можно создавать без ограничений.
Отверстия в главном перекрытии и в слое пирога кровли прорезаны с учетом опирания на основное перекрытие стен шахт.
Объектами-кровлями созданы также крышки шахт, размещенных на плоской кровле здания.


При создании кровли настройка ее параметров выполняется в немодальном диалоговом окне Создание кровли. Для кровель доступна настройка следующих параметров:
- материал;
- тип (многоскатная или односкатная);
- толщина (по нормали или по вертикали);
- уклон скатов;
- свес скатов;
- наклон торцов;
- зависимость от сетки осей и уровней;
- базовый уровень;
- смещение от базового уровня;
- высота.
Кровли создаются вводом позиций вершин контура на плане, возможно использование дуговых сегментов.
Допустимо прямое редактирование контура выбранной кровли аналогично прямому редактированию полилиний, а также создание отверстий в плане вводом позиций вершин контура.

Линию конька выбранной кровли можно параллельно смещать, что приводит к изменению значений уклонов скатов.

Изменение параметров существующей кровли выполняется в немодальном диалоговом окне Параметры кровли, идентичном диалоговому окну Создание кровли.
Для каждого ската выбранной кровли возможна индивидуальная настройка параметров:
- имя ската;
- площадь снизу;
- площадь сверху;
- объем;
- длина контура в плане;
- угол;
- свес;
- наклон торца.

Булево редактирование также было применено для создания козырьков входных групп с фигурными обломами. Они создавались объектами-перекрытиями, объединенными с твердотельными объектами, которые созданы средствами модуля «3D» (выдавливание плоского сечения по траектории). После применения булева объединения к корректно совмещенным перекрытию и непараметрическому твердотельному объекту последний приобрел свойства материала перекрытия, образовав с ним единый объект.
Работа с библиотекой объектов описана выше в контексте создания лестниц, однако этим ее содержание не ограничивается.
Функциональная панель Библиотека объектов обеспечивает доступ к большому количеству готовых объектов, распределенных по 18 категориям. Для выбранной категории в палитре содержатся заголовки раскрывающихся списков с объектами, представленными значками с подписями.
В пилотном проекте библиотека использовалась для размещения в модели санитарно-технического оборудования квартир, а также для ограждений на плоских кровлях и террасе.
Объекты библиотеки имеют 2D- и 3D-представление и корректно отображаются в объемной модели и на плане.


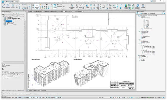
Первой была выполнена модель типового этажа и созданы листы с видовыми экранами, отображающими кладочный и маркировочный планы.
Модели остальных этажей и кровель на разных отметках выполнены корректировкой модели типового этажа в копиях ее файлов.
Модель здания собрана в отдельном файле из вхождений внешних ссылок на файлы-источники с моделями этажей. Вхождение ссылки с типовым этажом было скопировано с размещением копий на нужных отметках.
Выявленные при сборке полной модели погрешности устранены корректировкой исходных моделей этажей.



По готовности объединенной модели внешние ссылки были внедрены в файл модели.
Вертикальные проекции здания и проекция плана кровли настроены в плавающих видовых экранах листов документа с полной моделью. Сечения разрезов получены с помощью ограничивающих призм.
Табличные отчеты создавались в таблицах nanoCAD, формы которых выбирались из базы шаблонов таблиц, предлагаемой Платформой nanoCAD.
Редактирование таблиц nanoCAD выполнялось в редакторе, по форме и функционалу подобном MS Excel.


Таблицы nanoCAD позволяют автоматически составлять отчеты по выборкам объектов на основании объектных параметров. Наборы объектов для составления по ним отчетов формируются по критериям, заданным пользователем.
Для получения отчетов не требуется использовать внешнее ПО. Большим преимуществом таблиц nanoCAD является допустимость применения кириллических имен атрибутов.
Данные для экспликации помещений, спецификации элементов заполнения проемов, а также ведомости стен и перегородок получались непосредственно из параметрических объектов, созданных в конфигурации «nanoCAD BIM Архитектура».


Данные для ведомости перемычек, экспликации полов и ведомости отделки были на этапе создания маркировочного плана включены объектами-полями в атрибуты блоков, созданных для марок этих элементов здания, и послужили источниками при создании отчетов по этим формам.
В процессе создания отчета по отделке возникла необходимость в расчетах, для которых использовались скрытые столбцы, а результаты операций, проводимых в них, передавались в столбцы видимого диапазона.
При расчетах использовались стандартные математические операторы и формулы из набора, предлагаемого таблицами nanoCAD. Строки отчетов с данными сортировались в нужном порядке и группировались по совпадающим значениям. Итоги по сгруппированным позициям подсчитывались по формулам автоматически.
Таблицы nanoCAD сохраняют связь с объектами нужного типа и динамически корректируются при изменении количества таких объектов в модели или их числовых параметров. В свою очередь изменения, вносимые в таблицу в части значений параметров связанных с ней объектов, влияют на сами объекты.
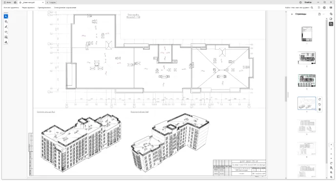
Чертежи формировались в пространствах листов на основе видов модели, представленных в плавающих видовых экранах. Для размеров на планах, обозначений уклонов кровли и высотных отметок на вертикальных проекциях применялись инструменты Платформы nanoCAD и модуля «СПДС». Сечения разрезов сборной модели создавались ограничивающими призмами отдельно для каждого видового экрана. Для оформления чертежей применялись инструменты модуля «СПДС» и базовые инструменты Платформы nanoCAD. Настроенные и оформленные листы чертежей объединены в комплект документации и в составе комплекта отправлены на пакетную печать для получения многостраничного файла PDF.
Средства для работы с комплектами документации являются инструментами Платформы nanoCAD.










Выполненные на основе модели готовые чертежи были объединены в комплект документации путем создания оболочки комплекта, настройки свойств комплекта, импорта листов с чертежами в комплект, сортировки листов в составе комплекта.
Лист общих данных комплекта создан на основе специального шаблона, что обеспечило автоматическое заполнение главного штампа в соответствии с заранее настроенными свойствами комплекта.
Заполненный штамп из листа общих данных был скопирован и вставлен через буфер обмена во все импортированные в комплект листы, при этом номера и наименования листов были обновлены автоматически.
Также автоматически сформирована ведомость листов для вставки в лист общих данных.
Для всех листов была выполнена единообразная настройка параметров печати с учетом отображения объектов пространства листа поверх объектов модели.
Листы комплекта объединены в набор для пакетной печати.
По результатам выполнения пакетной печати получен многостраничный файл формата PDF с набором чертежей комплекта.

Знакомство с первой версией программного продукта nanoCAD BIM Строительство (конфигурация «nanoCAD BIM Архитектура») показало его пригодность для эффективной работы по созданию моделей многоэтажных зданий и получению на их основе стандартных наборов архитектурных чертежей без необходимости использовать стороннее программное обеспечение.
Экспорт в формат IFC и импорт файлов IFC позволяют объединять в комплексе средств, работающих на Платформе nanoCAD, модели, созданные в различных программных средах, и работать с ними, снимая ограничения на совместимость форматов файлов для совместной работы.


