Эффективное формирование архитектурной модели многоэтажного здания с копированием между этажами в .dwg-модели
30 марта 2026
Дмитрий Малиновский
Дмитрий Малиновский
эксперт по внедрению и поддержке ТИМ, ГК «ИНФАРС»

При проектировании многоэтажных зданий в nanoCAD BIM Строительство проектировщики регулярно сталкиваются с необходимостью многократного копирования элементов модели между этажами. Повторяющиеся конструкции — стены, перекрытия, проемы и другие элементы требуют быстрого и корректного переноса, чтобы избежать ручной работы и снизить риск ошибок.

В таких задачах помогает инструмент копирования между этажами, реализованный в nanoCAD BIM Строительство. Он позволяет переносить элементы модели на другие уровни проекта и ускоряет формирование типовых этажей.

В статье мы рассмотрим работу этого инструмента на практическом примере. Для этого поэтапно сформируем модель этажа и разберем основные шаги подготовки проекта. Начнем с создания сетки осей и настройки параметров, необходимых для корректной работы модели. Параметры осей, используемые в примере, приведены в таблицах 1-3.

Табл. 1. Параметры осей по направлению X
Обозначения
Значения
Приращения
1
 0
 0
2
6000
6000
3
12000
6000
Табл. 2. Параметры осей по направлению Y
Обозначения
Значения
Приращения
А
 0
 0
Б
6000
6000
В
12000
6000
Табл. 3. Параметры осей по направлению Z
Обозначения
Значения
Приращения
Этаж 1
 0
 0
Этаж 2
3300
3300
Этаж 3
6600
3300
Этаж 4
9900
3300
Этаж 5
13200
3300
Кровля
16500
3300

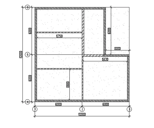
В качестве демонстрационного примера возможностей ПО и ускоренного закрепления информации построим относительно небольшую модель средствами программы. Построим первый этаж, начиная с перекрытия и несущих стен и опираясь на представленный план (рис. 1). Толщина перекрытия – 800, толщина стен – 250 и 120. Привязка стен снизу к осям «этаж 1», привязка стен сверху к осям «этаж 2» со смещением 200.

Рис. 1. План этажа

Опираясь на план, получим модель, показанную на рис. 2.

Рис. 2. Основная модель этажа

Добавим в модель дополнительные элементы: дверные и оконные проемы и помещения. Получим модель, показанную на рис. 3.

Рис. 3. Дополненная модель этажа

Для работы с копированием элементов в программе предусмотрены две основные команды Копировать и Разместить по этажам, расположенные на панели Модель на вкладках BIM Архитектура и BIM Конструкции (рис. 4).

Рис. 4. Расположение команд на ленте nanoCAD BIM Строительство

Принцип работы инструментов Разместить по этажам и Копировать основывается на привязке элементов к уровням сетки осей, соответственно, на данный момент, элементы, не имеющие привязки к сетке осей, например, параметрические объекты, не могут быть корректно скопированы подобным образом.

Инструмент Разместить по этажам (рис. 5) представляет собой отдельное окно, позволяющее копировать объекты по типам элементов внутри модели, а также вставлять объекты из буфера обмена nanoCAD BIM Строительства при копировании между моделями.

Рис. 5. Инструмент Разместить по этажам

  1. Выбор копируемых типов элементов.
  2. Выбор источника копируемых элементов. Буфер обмена – объекты, скопированные инструментом «Копировать» с возможностью переноса элементов между файлами. Исходный уровень – копирование или перенос элементов в рамках одной модели с выделенного уровня сетки осей.
  3. Выбор конечного места копирования, уровня сетки осей в проекте. Перемещать и копировать объекты можно как в рамках одной координатной сетки, так и между различными сетками в пределах одной .dwg-модели.
  4. Дополнительные настройки копирования или переноса объектов.
Базовый уровень объекта – возможность привязки базового уровня объекта к новому уровню сетки осей либо с возможностью отвязки от уровней и сохранением абсолютной отметки относительно МСК проекта.

Элементы с верхней привязкой – можно применять к элементам с привязкой как к базовому, так и верхнему уровню, таким как Стена. Параметр позволяет перепривязать элемент к новому верхнему уровню, соответствующему новому уровню из пункта 3, либо с возможностью отвязки от верхнего уровня с сохранением высоты существующего элемента.

Воспользуемся инструментом Разместить по этажам для копирования основных типов элементов на уровнях сетки осей проекта. Скопируем разработанную модель на уровень 2 (рис. 6), а затем скорректируем толщину перекрытия через свойства.

Рис. 6. Настройка инструмента Разместить по этажам для копирования на второй этаж

Итоговая модель, представленная на рис. 7, будет иметь следующий вид.

Рис. 7. Модель после применения инструмента Разместить по этажам

После корректировки толщины перекрытия вернемся к инструменту Разместить по этажам и продолжим копирование, начиная с уровня 2 (рис. 8).

Рис. 8. Настройка инструмента Разместить по этажам

Выберем оставшиеся 3 этажа для копирования элементов, а также в качестве исходного возьмем уровень 2.

Для копирования большого количества объектов сразу на несколько уровней может понадобиться некоторое время и надо будет задействовать увеличенные ресурсы компьютера. В этих случаях рекомендуется проводить копирование по одному этажу.

Итоговая модель продемонстрирована на рис. 9.

Рис. 9. Итоговая модель после использования инструмента Разместить по этажам

Для завершения модели выделим перекрытие и внешние стены 5-го этажа и используем инструмент Копировать. После этого вставим их на уровень сетки осей Кровля и отредактируем, чтобы получить окончательный вид модели.

При копировании из буфера обмена вид инструмента Разместить по этажам меняется. В этом варианте инструмента необходимо выбрать слева уровень, на котором находятся элементы в буфере обмена, справа выбирается целевой уровень, на который происходит копирование (рис. 10).

Рис. 10. Выбор элементов в буфере обмена

После применения инструментов Копировать и Разместить по этажам получим модель, показанную на рис. 11.

Рис. 11. Итоговая модель

Рассмотрим как использовать команду Копировать при переносе объектов между файлами. Для этого необходимо выделить элементы, перенос которых планируется в дальнейшем. При использовании копирования копии выбранных объектов переносятся в специализированный буфер обмена, связанный с программой nanoCAD BIM Строительство. В качестве примера выделим помещения в модели и переместим их в другой проект (рис. 12-13).

Рис. 12. Помещения исходной модели

Переносим выделенные элементы в буфер обмена через инструмент копирования (рис 13).

Рис. 13. Инструмент Копировать

Открываем сторонний проект (рис. 14).

Рис. 14. Сторонний проект nanoCAD BIM Строительство

Активируем в стороннем проекте инструмент Разместить по этажам, после чего выбираем в качестве источника копируемых объектов буфер обмена и указываем в окне Куда слева уровень сетки осей исходного проекта, из которого произвели копирование, а справа уровень сетки осей активного проекта, на который планируем копировать элементы (рис. 15).

Рис. 15. Настройки копирования в сторонний проект

Получаем следующий результат (рис. 16).

Рис. 16. Результат применения инструментов Копировать и Разместить по этажам

Таким образом, инструмент копирования между этажами в nanoCAD BIM Строительство позволяет значительно упростить работу при моделировании многоэтажных зданий и сократить количество повторяющихся операций.

При его использовании важно учитывать привязку элементов к уровням сетки осей — это обеспечивает корректное копирование объектов между этажами.

Правильная подготовка модели и использование инструмента Разместить по этажам позволяет ускорить процесс формирования типовых этажей и повысить точность работы с BIM-моделью.

Этот сайт использует cookies. Пользуясь сайтом, вы даете согласие на обработку ваших персональных данных. Подробнее