
Автоматизация стала неотъемлемой частью профессиональной деятельности инженеров-проектировщиков. Главное, что стоит отметить: она существенно упрощает и ускоряет процесс проектирования, обеспечивает высокую точность и надежность создаваемых чертежей. Кроме того, современные инструменты проектирования позволяют вести совместную работу над проектом, обмениваться информацией и вносить изменения в режиме реального времени. А это, в свою очередь, помогает специалистам сосредоточиться на творческих и инновационных аспектах проектирования, способствует развитию и совершенствованию профессиональных навыков.
Ниже мы рассмотрим следующие темы:
- оформление проектно-конструкторской документации по СПДС: быстро, просто, эффективно, на уровне всей организации;
- автоматизация проектирования КМ, КЖ, КЖИ;
- автоматизация разработки ПОС, ПОД и ППР;
- автоматическая векторизация и оцифровка сканов чертежей.
Для начала хотелось бы отметить опыт, полученный специалистами компании «Нормасофт» при выполнении проектов с применением отечественного программного обеспечения. Командой нашего проектного подразделения выполнены крупные разработки:
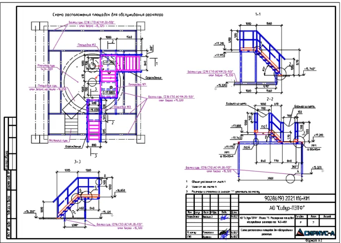
1. Объект: Реконструкция здания цеха обжига и помещений сушильно-помольного отделения, прессового отделения (рис. 1).
Заказчик: ООО «КиперШтат».
САПР: Платформа nanoCAD с модулем «СПДС», программа nanoCAD Металлоконструкции.





2. Объект: реконструкция плотины Айского водохранилища города Златоуст (рис. 2).
Заказчик: Инжиниринговая компания «ТОР», ФГАОУ ВО «ЮУрГУ (НИУ)».
САПР: Платформа nanoCAD с модулем «Растр», программа nanoCAD Стройплощадка.




Рис. 2
Теперь о том, что в первую очередь стоит за внедрением САПР. Решение об автоматизации – это, как правило, способ преодоления стагнации в основных рабочих процессах. Исследуя различные предприятия, мы выявили следующий комплекс проблем (рис. 3):
- трудоемкость процесса разработки чертежа;
- сложности, возникающие вследствие высокой степени детализации чертежей;
- проблемы с быстрым и качественным составлением спецификаций;
- необходимость внесения большого количества изменений в проект;
- затруднения, связанные с неотъемлемой частью проектирования – уточнениями и корректировками ключевых проектных решений.
Решению этих и многих других сложностей служат инструменты, которые мы сегодня представим.


Рис. 3
Прежде чем перейти к рассмотрению модулей и приложений, отвечающих за автоматизацию 2D-проектирования, нужно понять, на чем они базируются.
Основа этих решений, Платформа nanoCAD (рис. 4), включена за № 8814 в Единый реестр российских программ для ЭВМ и БД в информационно-телекоммуникационной сети Интернет. Платформа разработана компанией «Нанософт» с учетом российских стандартов, совместима с другими САПР, имеет удобный интерфейс и проста в освоении, является базовым программным инструментом 2D-проектирования, 3D-моделирования, создания цифровых двойников и реализации ТИМ (BIM).



Модуль «СПДС» Платформы nanoCAD (рис. 5) позволяет быстро и качественно оформить конструкторскую документацию. Он одинаково надежен и в процессе классического 2D-проектирования, и как инструмент при работах по технологиям информационного моделирования (ТИМ).

Модуль «умеет» создавать архитектурно-строительные чертежи зданий и сооружений, редактировать блоки архитектурных элементов и деталей, а также оформлять строительные чертежи (рис. 6).



Одно из преимуществ этого продукта – наличие утилит оформления (рис. 7), которые позволяют объединять отдельные отрезки и тексты в таблицу nanoCAD, автоматически нумеровать объекты чертежа, изменять масштаб выделенной графики, а также создавать собственные объекты с вычисляемыми свойствами.



Еще один серьезный плюс – поддержка формата BCF (рис. 8), который обеспечивает обмен информацией и совместную работу над проектами в формате BIM. Это позволяет фиксировать изменения в проекте и отслеживать их историю.

Также следует отметить библиотеку параметрических объектов (рис. 9), включающую широкий набор наиболее часто используемых металлических профилей, сборных железобетонных изделий и деталей креплений. Все библиотечные элементы соответствуют стандартам и сериям.




Рис. 9
В число ключевых возможностей ПО входит создание координационных осей и отметок уровня (рис. 10). Поддерживается автоматическая генерация отчетов. Есть Мастер объектов, который позволяет создавать и редактировать параметрические объекты, а также архитектурные элементы. Кроме того, в модуле «СПДС» объекты можно масштабировать.


Рис. 10
Перейдем к автоматизации создания основных комплектов рабочих чертежей марок КМ, КМД, КЖ, КЖИ при помощи специализированных вертикальных приложений nanoCAD Металлоконструкции и nanoCAD Конструкции PS (рис. 11). Основой обоих приложений служит Платформа nanoCAD, на которую они устанавливаются.


Рис. 11
Рассмотрим эти решения более подробно.
Программа nanoCAD Металлоконструкции предлагает весь функционал, который необходим при проектировании металлоконструкций, элементов из сборного и монолитного железобетона. Требуемые параметры объектов задаются в удобных диалоговых окнах. Работа организована в единой среде nanoCAD, благодаря чему поддерживается использование всех инструментов модуля «СПДС» и базы параметрических строительных объектов (металлопрокат, сборный железобетон, крепеж и т.д.) – (рис. 12).

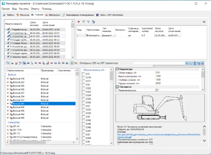
Основным функциональным элементом программы является Менеджер проекта. Он играет ключевую роль в структурировании будущего проекта, и от уровня владения этим инструментом зависит удобство всей дальнейшей работы. Чем более детально вы проработаете структуру в Менеджере, тем комфортнее вам будет управлять проектом в будущем. Менеджер проекта позволяет изменять параметры элементов, выделять выбранные элементы на чертеже, копировать и перемещать их между разделами, вести учет в спецификациях и ведомостях (рис. 13).



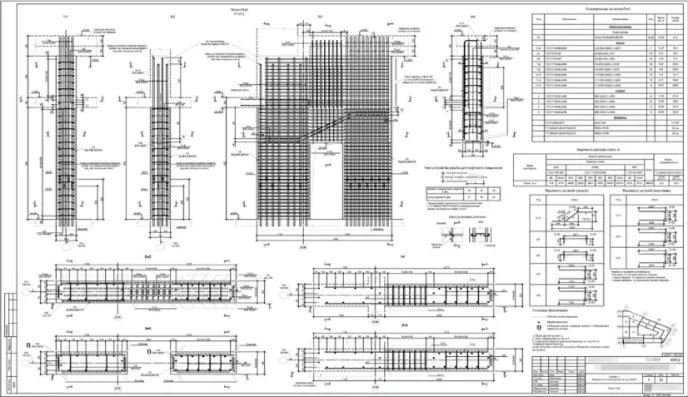
Инструменты работы с комплектами рабочих чертежей КМ включают в себя постоянно обновляемую базу сортамента металлопроката. Поддерживаются автоматизация графического оформления, создание узлов с автоматическими маркировками, выполнение подрезок и учет видимости линий элементов (рис. 14). Также существует возможность разработки марок основных комплектов рабочих чертежей КМД. Программа автоматически генерирует специализированные ассоциативные ведомости и спецификации на основе выполненных чертежей проекта. Все это доступно и в разделе проектирования конструкций из железобетона.



Что касается проектирования марок основных комплектов рабочих чертежей КЖ и КЖИ, то оно осуществляется с помощью специально разработанных программных средств и «умных» объектов (детали арматуры, раскладка арматуры, фоновое армирование, а также специальные объекты для создания свай) – (рис. 15). Такие объекты можно использовать как для детального усиления элементов конструкции, так и при усилении больших объемов – например, стенных плит.



Следующий программный продукт – nanoCAD Конструкции PS – нацелен исключительно на автоматизацию разработки марок основных комплектов рабочих чертежей КЖ и КЖИ (рис. 16).

Этот продукт будет полезен строительным компаниям, выполняющим соответствующие разделы проектирования. Проектным компаниям и девелоперам, работающим в сфере 2D-проектирования и не планирующим переходить в сферу BIM. Заводам ЖБИ.
Среди ключевых преимуществ программы можно выделить ускоренную разработку проектной документации, наличие библиотеки типовых информационно-параметрических 2D-элементов, возможность настроить создание документации в соответствии со стандартами любого предприятия. Кроме того, благодаря встроенной базе элементов арматуры и сборного железобетона (рис. 17), nanoCAD Конструкции PS уменьшает риск появления ошибок. Кстати, эта база может быть редактироваться и пополняться.


Рис. 17
Первый модуль приложения – «КЖ» – отвечает за разработку марок основных комплектов рабочих чертежей КЖ и КЖИ в полном соответствии с российскими стандартами. Второй – «Фундаменты» – предназначен для подготовки схем расположения и чертежей столбчатых фундаментов на свайном и естественном основании. Также он поддерживает расчеты параметров основания для фундаментов колонн, свайного куста. Рассчитывает прочность по несущей способности сваи монолитных и сборных ленточных фундаментов.
Модуль «Оформление» позволяет ускорить процесс оформления чертежей (рис. 18), выполненных с применением первых двух модулей.



Для автоматизации процессов разработки проектов организации строительства (ПОС), организации демонтажа (ПОД) и производства работ (ППР) предназначен программный продукт nanoCAD Стройплощадка (рис. 19).

С применением программы выполняется оформление стройгенплана, проектируются временные дороги, определяются потребности в кадрах и ресурсах, а также планируется строительство, подбирается строительная техника и рассчитываются временные коммуникации (рис. 20).



Расчеты производятся на основе соответствующих методических рекомендаций и ГОСТов (рис. 21), среди которых:

- Постановление Правительства РФ № 87 от 16.02.2008 г. «О составе разделов проектной документации и требованиях к их содержанию»;
- МДС 12-46.2008 Методические рекомендации по разработке и оформлению проекта организации строительства, проекта организации работ по сносу (демонтажу), проекта производства работ;
- МДС 12-81.2007 Методические рекомендации по разработке и оформлению проекта организации строительства и проекта производства работ;
- ГОСТ 21.204-2020 Условные графические обозначения и изображения элементов генеральных планов и сооружений транспорта;
- ГОСТ Р 52289-2019 Правила применения дорожных знаков, разметки, светофоров, дорожных ограждений и направляющих устройств;
- ОДМ 218.6.019-2016 Рекомендации по организации движения и ограждению мест производства дорожных работ;
- ГОСТ 12.4.026-2015 Цвета сигнальные, знаки безопасности и разметка сигнальная.
Основным инструментом программы nanoCAD Стройплощадка является уже знакомый нам Менеджер проекта. С его помощью можно настроить все необходимые элементы. В первую очередь настраиваются объемы выполняемых работ с формированием перечня этих работ и расценки на них с привязкой к работам из перечня. Данные из Менеджера можно напрямую экспортировать в сметные программы (рис. 22).



Далее создается список техники, которая будет использоваться на стройплощадке. Программа предоставляет обширную базу машин и механизмов со всеми необходимыми характеристиками, что позволяет подбирать технику по заданным параметрам (рис. 23).

Объем различных материалов, взятых из базы или обозначенных в проекте вручную, результаты автоматического расчета площади складирования, схемы складирования материалов, полученные из готовой библиотеки, отображение складирования на строительном генеральном плане – все это учитывается в сгенерированных спецификациях проекта. Кроме того, в nanoCAD Стройплощадка есть функция календарного планирования, которая поддерживает построение диаграммы Ганта по списку работ и создание календарных графиков. Продолжительность работ рассчитывается автоматически или устанавливается пользователем (рис. 24).






Рис. 24
При оформлении стройгенплана в первую очередь настраиваются объекты площадки: здания, складские площади, ограждения. Далее наносятся схемы инженерных сетей, выбирается строительная техника. Обозначаются опасные зоны, откосы, выемки, насыпи, намечаются места установки информационных щитов и т.д.
Еще один важный плюс: программа позволяет в автоматическом режиме формировать пояснительную записку в соответствии с Постановлением Правительства РФ № 87 от 16.02.2008 г. – в формате DOC и с параметрами, ранее указанными в Менеджере проекта (рис. 25). Результаты всех расчетов и обоснование выбора той или иной техники приводятся в соответствующих разделах записки. Также нужно отметить, что записка формируется по шаблону, который можно корректировать в соответствии с требованиями заказчика или внутреннего документооборота организации.




Рис. 25
Еще один модуль, о котором хотелось бы рассказать, – «Растр». Он входит в состав Платформы nanoCAD и предназначен для автоматической векторизации. Позволяет создавать различные векторные объекты из исходных растровых изображений, таких как точки, отрезки, дуги, окружности, контуры и др., которые затем могут быть отредактированы. После векторизации средствами модуля можно распознать типы линий, окружностей, дуг и полилиний, а также направления на отрезках и дугах (рис. 26).

В модуле также представлено множество инструментов фильтрации монохромных изображений (рис. 27). Существует возможность сглаживания, утоньшения и утолщения линий. Доступны функции удаления «мусора», заполнения разрывов в линиях и сортировки объектов по типу и размеру. Применение этих команд не только повышает качество растровых файлов, но и уменьшает их размер.

Отдельно отметим функцию бинаризации и разделения цветов (рис. 28). Она позволяет преобразовать цветное изображение в монохромный растр, где объекты (дороги, реки и т.д.) будут размещены на отдельных слоях в зависимости от их цвета на исходной картинке. Векторизация такого растра оказывается более эффективной, чем аналогичный процесс, выполняемый при черно-белом сканировании цветного оригинала.

Документы, которые мы перевели в векторный формат, можно использовать в проектах и подгружать в программы и модули, представленные в этой статье.
Подведем итог. Внедрение систем автоматизированного проектирования приносит предприятию множество преимуществ, включая повышение эффективности работы, сокращение временных и финансовых затрат, улучшение качества проектирования и упрощение процедур согласования. Программные комплексы являются неотъемлемой частью современной инженерной практики и помогают компаниям повысить конкурентоспособность.
По материалам доклада на прошедшей в Екатеринбурге всероссийской инженерной конференции «ТИМ-практика: от внедрения до экспертизы».


