Компания «Агро-ПроектСтрой» проектирует промышленные объекты для хранения и переработки растительного сырья, выполняет пусконаладочные работы, оптимизирует технологические процессы действующих предприятий, производит настройку и отладку аспирационных сетей, а также сетей пневмо- и аэрозольтранспорта.
При подготовке технической документации требуется взаимодействовать с партнерами, использующими различные BIM-решения. Необходим инструмент, позволяющий рассматривать партнерские разработки и учитывать их при построении информационной модели, выпускать итоговую техническую документацию в соответствии с действующими стандартами.
Платформа nanoCAD с модулем «СПДС».
nanoCAD BIM Конструкции (с 23 октября 2024 года продукт поставляется как nanoCAD BIM Строительство (конфигурация «Конструкции»)).
«СиСофт Новосибирск» – фокус-партнер по направлению «Конструкции».
- Наличие инструментов построения пластинчато-стержневой модели с использованием стандартных сечений.
- База типовых элементов, разработанных в соответствии с действующими нормативами (серии, ТУ), и возможность пополнять ее собственными элементами.
- Возможность экспорта стержневой модели в расчетные комплексы (SCAD, ЛИРА).
- Автоматическое создание спецификаций на основе сформированной информационной модели.
- Возможность взаимодействия (экспорт/импорт) с любыми BIM-программами.
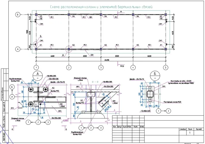
На этапе внедрения nanoCAD BIM Конструкции был выполнен пилотный проект здания авторазгрузки (разделы КЖ, КМ), в ходе которого удалось:
- выявить коллизии при разработке конструкторских разделов, обеспечить согласование со смежными отделами. Это позволило избежать дополнительных финансовых и временных затрат при проведении строительно-монтажных работ;
- в автоматическом режиме получить точные ведомости материалов;
- сократить сроки разработки технической документации. На столь небольшом объекте этот эффект оказался не очень значительным, но при разработке средних и крупных проектов экономия времени безусловна.
«В процессе освоения программы nanoCAD BIM Конструкции мы оценили удобство этого инструмента и возможности взаимодействия с другими BIM-решениями. При этом не обошлось без некоторых сложностей: марки стали некорректно отображаются в технической спецификации металла;
в преднастроенной спецификации не указывается длина арматурных стержней – приходится добавлять этот параметр самостоятельно. Ожидаем исправления обеих неточностей в новом релизе продукта, что нам и обещал разработчик».





